REQUEST A TOUR If you would like to see this home without being there in person, select the "Virtual Tour" option and your agent will contact you to discuss available opportunities.
In-PersonVirtual Tour

Listed by Alice Chakhmazova • Coldwell Banker Realty
$ 5,500,000
Est. payment /mo
Active
Hill LN San Jose, CA 95120
1.15 Acres Lot
UPDATED:
Key Details
Property Type Vacant Land
Sub Type Residential Development Land
Listing Status Active
Purchase Type For Sale
MLS Listing ID ML82003242
Lot Size 1.150 Acres
Property Sub-Type Residential Development Land
Property Description
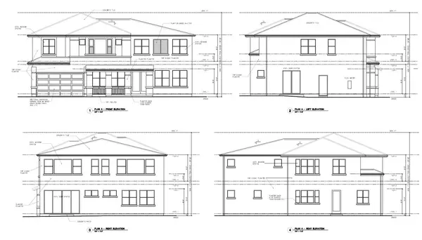
An exceptional opportunity for builders, investors, or visionaries - this property is being subdivided under California's SB-330, with plans in the final stages of approval for 3 single-family homes. Each home is situated on its own parcel, measuring approximately 0.27-0.45 acres. Each residence is planned at approximately 4,000 square feet of living area, offering spacious layouts ideal for modern living. The parcels also provide potential for ADUs - creating flexibility for extended family, guest suites, or rental income. Located in the highly desirable Leland High School district, the site is tucked away at the base of a hill in a peaceful neighborhood. The proposed homes are thoughtfully designed to take advantage of the natural setting, with future balconies offering scenic views of the Almaden Valley. All the hard work has been done - just take the plans, build the homes, choose your finishes, and you're done. With convenient utility access and a prime South Bay location, this is a compelling opportunity for efficient and profitable development. Buyers to verify all development potential, zoning requirements, and SB-330 compliance with the local planning department. Don't miss this rare chance to build in one of San Jose's most sought-after school districts.
Location
State CA
County Santa Clara
Area Almaden Valley
Zoning Residential
Exterior
Fence None
Utilities Available Electricity - Available at Street, Gas - Available at Street, Public Utilities
Present Use Residential
Building
Lot Description Grade - Hillside, Subdivided, Views
Sewer Septic Connected, Sewer Available
Water Water Available at Street
Others
Horse Property No
Special Listing Condition New Subdivision

© 2025 MLSListings Inc. All rights reserved.






